WEITBLICK ZORNHEIM

Zwischen Weinbergen und Metropolen

55270 Zornheim

Mehrfamilienhaus mit übereinanderliegenden Balkonen in der Sonne, seitliche Ansicht mit Garten und gepflasterter Zufahrt.

Sechs moderne Wohnungen in ruhiger Lage, durchdacht geplant, hochwertig ausgestattet und nachhaltig gebaut – ideal für alle Lebensphasen und als zukunftssichere Kapitalanlage im Rhein-Main-Gebiet.

BESCHREIBUNG

KfW-40-QNG konformes Wohneigentum im Rhein-Main-Gebiet

Objekt: Neubau-Mehrfamilienhaus mit 6 Wohneinheiten – bezugsfertig, nachhaltig und zukunftssicher.

Standort: Zornheim, Rheinhessen – ruhige Lage im Grünen, nur ca. 15 Minuten von Mainz. Voll in das Mainzer Stadtbusgebiet eingebunden – perfekt für Studenten & Pendler.

Zielgruppe: Kapitalanleger & institutionelle Investoren mit Fokus auf KfW-40-QNG -konformes Wohneigentum, nachhaltige Mieteinnahmen und Wertbeständigkeit.

Wohnküche mit dunkler Einbauküche und Lounge-Sofa – WEITBLICK Zornheim Typ A

WOHNUNGSTYPEN

Das Mehrfamilienhaus WEITBLICK Zornheim umfasst vier unterschiedliche Wohnungstypen – sorgfältig geplant für verschiedene Mietergruppen und damit optimal für eine stabile, breit gestreute Vermietung. Gesamtwohnfläche: ca. 553 m²

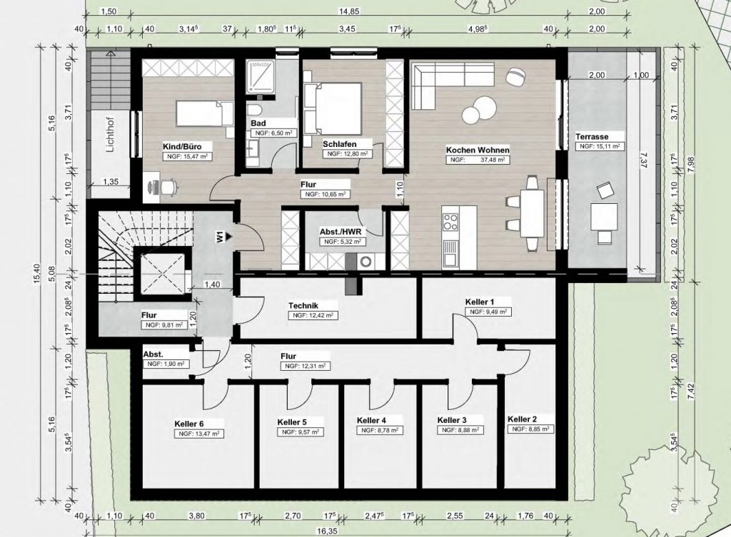
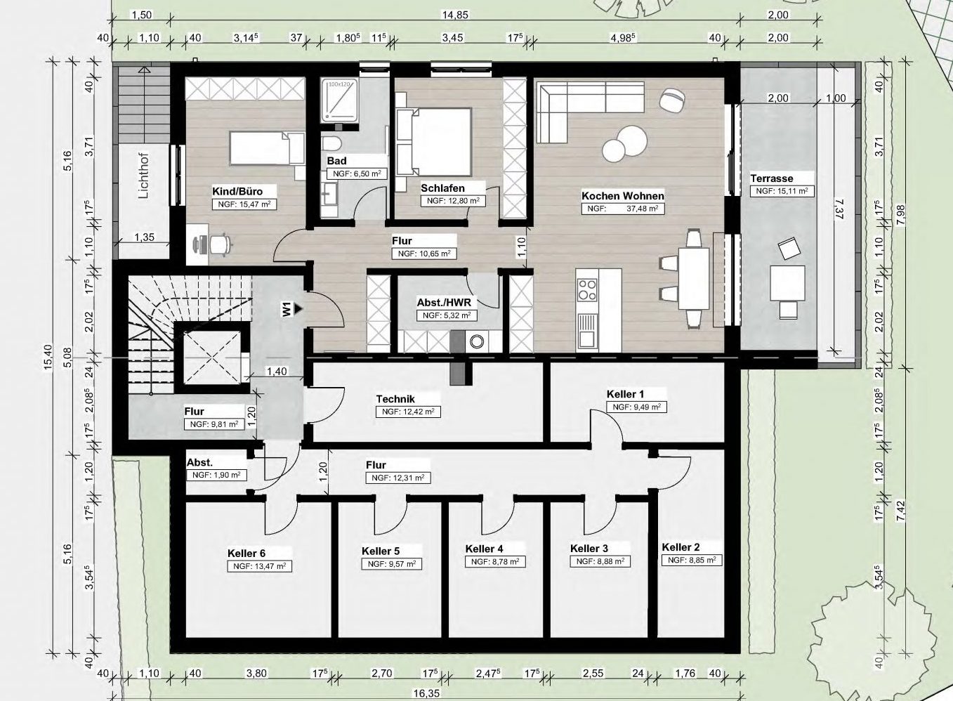
DIE GARTENGESCHOSSWOHNUNG

Mehr Raum durch Hanglage clever genutzt

Ideal für Familien, Senioren oder barrierefreies Wohnen. Die Einheit bietet direkten Zugang zu privaten Gartenanteilen – ein attraktives Alleinstellungsmerkmal für langfristige Mieterbindungen.

Die großzügige 3-Zimmer-Wohnung im Gartengeschoss des Gebäudes liegt durch die Hanglage nicht im dunklen Keller, sondern bietet helle Räume mit direktem Zugang zur eigenen Terrasse und dem Garten – ideal für alle, die Rückzug und Natur verbinden möchten.

Der offene Wohn- und Essbereich überzeugt mit durchdachter Raumaufteilung, großen Fensterflächen und fließendem Übergang zum Außenbereich. Das ruhige Schlafzimmer bietet Platz für individuelle Einrichtungsideen. Ein modernes Badezimmer – auf Wunsch barrierefrei – sowie eine praktische Abstellkammer machen diese Einheit komplett.

Barrierefrei, mit Fußbodenheizung und gebaut nach KfW-40-QNG-Standard, erfüllt diese Wohnung höchste Anforderungen an zeitgemäßes, nachhaltiges Wohnen.

Schlafen12,80 m²
Kind/Büro15,47 m²
Flur10,65 m²
Bad06,50 m²
Kochen/Wohnen37,48 m²
Terrasse (50%)07,56 m²
Wohnfläche gesamt90,46 m²
Abstell/HWR05,32 m²
Keller09,57 m²
Wohn- und Nutzfläche gesamt105,35 m²

ab 527.500€

EG & OG WOHNUNGSTYP A

Kompakte Eleganz mit Balkon

Perfekt für Paare oder kleine Familien. Klare Grundrisse und flexible Gestaltungsmöglichkeiten schaffen Raum für individuelle Wohnideen. Sehr gute Vermietbarkeit mit mittleren Preissegmenten.

Mehrfamilienhaus in Hanglage mit großen Balkonen, Putz- und Holzfassade und begrünter Außenanlage.

Diese 2-Zimmer-Wohnung ist ideal für Singles oder Paare, die modernes Wohnen in ruhiger Umgebung suchen.

Der helle Wohn- und Essbereich mit großen Fensterflächen schafft eine angenehme Wohnatmosphäre, der angeschlossene Balkon erweitert den Wohnraum ins Freie – perfekt für sonnige Stunden mit Ausblick. Das Schlafzimmer ist ruhig gelegen und bietet Platz für persönliche Gestaltung. Das modern ausgestattete Bad kann auf Wunsch barrierefrei ausgeführt werden. Eine praktische Abstellkammer bietet zusätzlichen Stauraum.

Barrierefrei, mit Fußbodenheizung und energieeffizient nach KfW-40-QNG, verbindet diese Wohnung Wohnkomfort mit nachhaltigem Anspruch – in attraktiver Lage nahe Mainz.

 

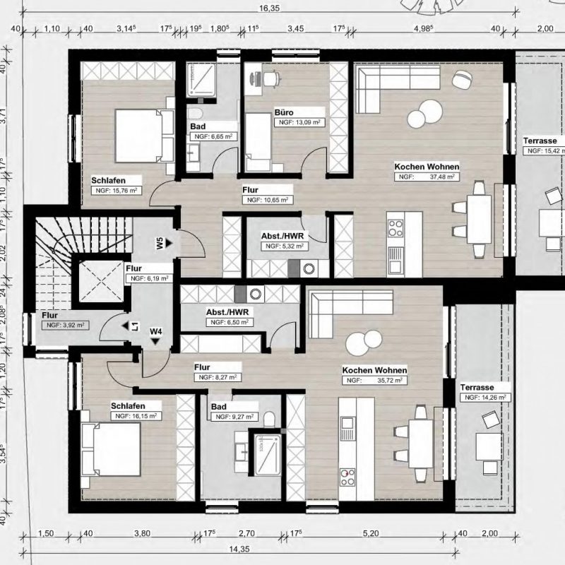
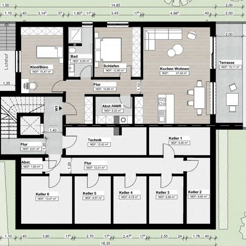
Schlafen16,15 m²
Flur08,27 m²
Bad09,27 m²
Kochen/Wohnen35,72 m²
Terrasse (50%)07,13 m²
Wohnfläche gesamt76,54 m²
HWR06,50 m²
Keller13,47 m²
Wohn- und Nutzfläche gesamt91,82 m²

ab 423.500€

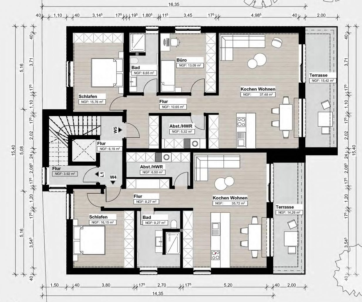
EG & OG WOHNUNGsTYP B

Großzügiges Wohnen mit Balkon

Ideal für Paare oder Singles mit Anspruch an Komfort und Effizienz. Beliebte Wohnungsgröße für Berufspendler – geringes Leerstandsrisiko.

Abendliche Außenansicht des Mehrparteienhauses mit beleuchteten Innenräumen und Terrassenstaffelung – WEITBLICK Zornheim

Die 3-Zimmer-Wohnung überzeugt mit einem durchdachten Grundriss und viel Platz für Familien oder alle, die großzügig wohnen möchten.

Das Herzstück ist der helle Wohn- und Essbereich mit großen Fensterflächen und Zugang zum sonnigen Balkon– perfekt für entspannte Stunden im Freien. Das Hauptschlafzimmer ist geräumig, das zusätzliche Zimmer flexibel nutzbar als Kinder-, Arbeits- oder Gästezimmer. Ein modern ausgestattetes Bad, auf Wunsch barrierefrei, sowie eine praktische Abstellkammer runden das Raumangebot ab.

Barrierefrei geplant, mit Fußbodenheizung und energieeffizient nach KfW-40-QNG, bietet diese Wohnung zeitgemäßen Wohnkomfort in ruhiger Lage nahe Mainz.

Schlafen 15,76 m²
Flur 10,65 m²
Bad 06,63 m²
Kind/Büro 13,09 m²
Kochen/Wohnen 37,48 m²
Terrasse (50%) 07,31 m²
Wohnfläche gesamt 90,92 m²
HWR 05,32 m²
Keller 09,49 m²
Wohn- und Nutzfläche gesamt 105,73 m²

ab 511.500€

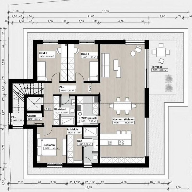
PENTHOUSE IM LOFTSTIL

Ihr privates Loft im WEITBLICK | Wohnen über den Dächern von Zornheim

Exklusives Wohnen mit Dachterrasse, privatem Zugang und Panoramablick. Ideal für Selbstnutzer oder Premium-Mieter mit Anspruch an Komfort und Privatsphäre. Hohes Mieteinnahmepotenzial, z. B. für möbliertes Wohnen oder Business-Vermietung.

Diese exklusive Penthouse-Wohnung verbindet Großzügigkeit mit höchstem Wohnkomfort. Der helle Wohn- und Essbereich öffnet sich zu einer weitläufigen Dachterrasse, die den Blick ins Grüne freigibt und den Wohnraum nach draußen erweitert. Bodentiefe Fenster mit Dreifachverglasung sorgen für lichtdurchflutete Räume und ein offenes Wohngefühl.

Hochwertige Böden, stilvolle Türen und moderne Armaturen unterstreichen die klare Architektur. Eine Fußbodenheizung in allen Räumen sorgt für behagliche Wärme. Auf Wunsch kann die Wohnung komplett möbliert übernommen werden – ausgestattet mit maßgefertigten Möbeln aus der Manufaktur GERBER. Ergänzend lassen sich eine individuell geplante Küche und exklusive Badmöbel aus der hauseigenen Fertigung als Sonderausstattung realisieren.

Schlafen11,45 m²
Kind I11,98 m²
Kind II11,94 m²
Flur OG03,92 m²
Flur DG11,83 m²
Bad05,62 m²
Gästebad06,40 m²
Ankleide05,71 m²
Kochen/Wohnen55,80 m²
Terrasse (50%)07,78 m²
Wohnfläche gesamt138,28 m²
HWR05,97 m²
Abstell01,88 m²
Keller13,47 m²
Wohn- und Nutzfläche gesamt149,89 m²

ab 798.500€

Wohnbereich mit Sitzfenster und Blick auf den Balkon in WEITBLICK Zornheim bei Tageslicht

AUSSTATTUNG

Auf Wunsch kann die Wohnung komplett möbliert übernommen werden – ausgestattet mit maßgefertigten Möbeln aus der Manufaktur GERBER. Hier verbindet sich zeitloses Design mit höchster handwerklicher Präzision: vom Boden bis in die Küchenschublade ist jedes Detail aufeinander abgestimmt.

Im Grundumfang enthalten sind stilvolle Türen, hochwertige Böden sowie moderne Armaturen. Zusätzlich können eine individuell geplante Küche und exklusive Badmöbel aus der hauseigenen Fertigung als Sonderausstattung erworben werden.

GERBER Architekturbüro mit hauseigener Schreinerei Wir designen, planen, bauen und fertigen Lebensräume.

Im Kaufpreis sind unter anderem die folgenden Highlights enthalten:

GERBER I  EXKLUSIV – Paket

  • Stilvolle Türen aus der Manufaktur GERBER
  • Hochwertige Bodenbeläge
  • Moderne Armaturen
  • Balkon-Geländer 

OPTIONALE AUSSTATTUNG 

  • Individuell geplante Küche 
  • Exklusive Badmöbel aus eigener Fertigung 
  • Maßgefertigte Möbel auf Wunsch
  • Fassadenverkleidung mit Rhombusleisten  

Weitere Eindrücke zur Ausstattungsqualität unserer Häuser erhalten Sie über die folgenden Links: 

DESIGN.

PLANUNG.

UMSETZUNG.

+

PROJEKTENTWICKLUNG.

IMMOBILIENVERMITTLUNG.

BAUFINANZIERUNG.

=

ALL IN ONE.

KfW-40-QNG

Investieren in WEITBLICK Zornheim – zukunftssicher und nachhaltig. Die energieeffiziente Bauweise nach KfW-40-QNG Standard bietet attraktive Sonderabschreibungen, sowie individuelle Fördermöglichkeiten.

Die 6 Eigentumswohnungen am ruhigen Ortsrand von Zornheim sind hochwertig geplant und ideal für Kapitalanleger. Einbauküchen und Badmöbel aus der GERBER-Schreinerei sind als Ausstattungspaket optional erhältlich und erhöhen die Mieterattraktivität.

Sichern Sie sich eine wertstabile Immobilie im Rhein-Main-Gebiet – modern, nachhaltig und mit langfristigem Renditepotenzial.

ENERGIEEFFIZENZ

Reduzieren Sie Ihre Energiekosten durch innovative Bauweise und hochwertige Dämmung.

FÖRDERMÖGLICHKEITEN

Staatliche Zuschüsse und attraktive Konditionen machen Ihre Investition noch wertvoller.

KLIMAFREUNDLICHES WOHNEN

Ein Beitrag zur Umwelt durch nachhaltige Materialien und ressourcenschonendes Bauen.

Rezensionen

Wir haben uns Anfang 2018 entschieden ein Haus zu bauen und waren anschließend bei einigen sog. „Massivhausanbietern“ zur Beratung. Wir hatten ziemlich genaue Vorstellungen von unserem Traumhaus aber natürlich auch noch einige Probleme, die zu lösen waren – und ehrlich gesagt konnte uns niemand so richtig überzeugen dort unser Projekt vom eigenen Haus in Auftrag zu geben, niemand konnte uns so richtig „mitnehmen“.
Das änderte sich schlagartig bei der Firma Gerber – über eine private Empfehlung lernten wir den Geschäftsführer, Sven Gerber, kennen. Es gab sofort Ideen für unsere „Problemchen“ und wir merkten wie es vor allem um Details ging, die uns jetzt in unserem fertigen Haus jeden Tag begeistern. Dinge wie eine individuell geschreinerte Küche oder einen Einbauschrank unter der Treppe hören sich ganz normal an – aber wenn man die Bilder gesehen hat, braucht man keine Worte mehr dafür – einfach nur einzigartig!
Also, für alle die sich zurücklehnen wollen und mit totaler Entspannung ein Eigenheim entstehen sehen wollen – eine klare Empfehlung für die Firma Gerber Ingenieure.
An dieser Stelle nochmals ein großes Dankeschön an Sven und auch an alle Jungs aus seinem Team – es hat Spaß gemacht und wir freuen uns jeden Tag über unser „Traumhaus“!

WhatsApp Image 2022-05-06 at 16.28.39

Alexander Kluge

Impressionen vom Projekt

Von der Idee zum Eigenheim

Wer schon mal gebaut hat, der weiß nur zu gut, wie lang und steinig der Weg von der Bau-Idee bis zum Einzug in das Eigenheim ist oder sein kann.

Auch wir standen zu Beginn vor den 1000 Fragen, die ein Bau so mit sich bringt. Man hat unzählige Ideen und Wünsche, wie das eigene Zuhause später aussehen soll. Dann die ersten Gespräche, auf die die große Ernüchterung folgt. Bei den meisten Anbietern auf dem Markt, muss man enorme Kompromisse eingehen oder man bekommt das Standardprogramm abgespult, ohne das auf die individuellen Bedürfnisse eingegangen wird – das wollten wir aber nicht. Wir suchten also jemanden, der unsere Vision – unseren Stil von Haus versteht und umsetzt.

Via Instagram sind wir dann auf Gerber Ingenieure aufmerksam geworden – direkt im ersten Gespräch haben wir gemerkt, dass wir verstanden werden – eine Sprache sprechen. Die Entscheidung war gefallen – Gerber oder nix!!

Das Konzept des ganzheitlichen Ansatzes bis hin zu Leistungen aus der hauseigenen Schreinerei hat uns, neben der fachlichen und positiven Art von Sven Gerber, absolut überzeugt. Anfangs skeptisch, was den “stressfreien” Bau anging, waren wir nach dem Einzug und den Erzählungen von anderen Baustellen mehr den je von unserer Entscheidung überzeugt.

WhatsApp Image 2022-05-06 at 14.44.17 (1)

Wir hätten uns aus beruflichen Gründen zeitlich niemals in das Thema Hausbau einarbeiten können und wären wahrscheinlich nie auf die Idee gekommen ein Haus zu bauen. Durch Horrorgeschichten im Bekanntenkreis wurden wir vom Hausbau abgeschreckt.

Durch Instagram, Freunde und Familie sind wir auf Sven und Gerber Ingenieure aufmerksam geworden. Das Konzept mit Hausgestaltung und Durchführung in einer Hand hat uns absolut begeistert.

Wir kamen durch Zufall an ein Grundstück welches aber sehr schwer zu bebauen war und haben einen kreativen Partner gebraucht der uns individuell auf dieses Grundstück unser Traumhaus baut. Ohne dass es uns viel Zeit und Nerven kostet.

Die Firma Gerber hat das geschafft! Der Hausbau verlief komplett ohne Stress, so dass wir uns in der Bauphase über die einzelnen Baufortschritte freuen konnten. Alles wurde genauso umgesetzt wie es auch geplant war und wir mussten uns bis zum Umzug um Nichts kümmern. Auch keine Küche im Möbelhaus aussuchen, da diese genau wie die Sitzfenster (wir haben 2 😉) bei einem Gerberhaus immer dabei ist. Danke an Sven und das komplette Team aus dem Planungsbüro und der Schreinerei!

bil

Dr. Markus Goldhofer

Impressionen vom Projekt

Lagevorteile für Investoren

Die Lage des Projekts bietet Investoren gleich doppelte Vorteile. Auf der Makroebene liegt Zornheim im Rhein-Main-Gebiet, einem der stärksten Wohn- und Wirtschaftsstandorte Deutschlands. Die Nähe zu Mainz, Wiesbaden, Frankfurt und Darmstadt sorgt für eine hervorragende Anbindung und sichert eine hohe Nachfrage bei stabilem Mietniveau. Daraus ergibt sich ein potenzielles Plus sowohl bei der Wertentwicklung als auch beim Mietertrag.

Auf der Mikroebene überzeugt Zornheim durch seine ruhige Ortsrandlage direkt am Feldrand. Gleichzeitig ist der Ort über das Mainzer Stadtbus-Netz optimal angebunden. Die Wohnlage ist besonders attraktiv für Familien und Berufspendler, profitiert aber auch von der Nähe zu den Hochschulstandorten Mainz und Wiesbaden, die als Studentenstädte zusätzlich Nachfrage erzeugen. Lebensmittelgeschäfte, Gastronomie, Kitas und Schulen sind zudem bequem fußläufig erreichbar.

Makrolage

  • Rhein-Main-Gebiet – einer der stärksten Wohn- und Wirtschaftsstandorte Deutschlands
  • Nähe zu Mainz, Wiesbaden, Frankfurt, Darmstadt
  • Hohe Nachfrage bei stabilem Mietniveau
  • Potenzial bei Wertentwicklung & Mietertrag

Mikrolage

  • Zornheim – ruhige Ortsrandlage, direkt am Feldrand
  • Direkte Anbindung an das Mainzer Stadtbus-Netz
  • Attraktive Wohnlage für Familien & Berufspendler
  • Nähe zu Hochschulstandorten: Mainz & Wiesbaden = Studentenstadt
  • Lebensmittelgeschäfte, Gastronomie, Kitas & Schulen fußläufig erreichbar

KONTAKT

Ihnen gefällt unser Bauprojekt und Sie möchten gerne mehr Informationen? Dann wenden Sie sich gerne jederzeit an uns und wir werden uns umgehend mit Ihnen in Verbindung setzen. 

MAXIMILIAN ZAHN

GESCHÄFTSFÜHRER

m.zahn@quadratundmeter.com
Telefon: 06731 8923399
Mobil: 0173 8308830