Wohnen in einem modernen Quartier – fünf Häuser, eine klare Architektur.
Mit dem Projekt EICHERWALD entsteht ein Ensemble aus fünf baugleichen Mehrfamilienhäusern im grünen Süden von Erbes-Büdesheim. Jedes Haus umfasst fünf energieeffiziente Wohneinheiten – kompakt geplant, mit klaren Grundrissen und dem gewohnt hohen Anspruch von Quadrat & Meter an Material, Gestaltung und Nachhaltigkeit.
KfW-40-QNG konformes Wohneigentum in Rheinhessen
Objekt: Neubau-Quartier aus fünf baugleichen Mehrfamilienhäusern mit insgesamt 25 Wohneinheiten – effizient, nachhaltig und zukunftssicher. Wiederkehrende Grundrisse (Typ A, Typ B & Penthouse) sorgen für klare Planung, starke Vermietbarkeit und zuverlässige Wertentwicklung.
Standort: Erbes-Büdesheim, Rheinhessen – ruhige, gewachsene Lage im Grünen, wenige Minuten von Alzey und optimal angebunden an das Rhein-Main-Gebiet. Hohe Lebensqualität, kurze Wege und ideale Bedingungen für Mietergruppen wie Pendler, Berufseinsteiger und kleine Familien.
Zielgruppe: Kapitalanleger, sicherheitsorientierte Privatpersonen sowie institutionelle Investoren, die von KfW-40-QNG-konformem Wohneigentum, steuerlichen Vorteilen, stabilen Mieteinnahmen und langfristiger Wertbeständigkeit profitieren möchten.
Das Wohnquartier EICHERWALD Erbes-Büdesheim umfasst drei klar strukturierte Wohnungstypen – wiederkehrend geplant in fünf baugleichen Mehrfamilienhäusern.
Die Wohnungstypen A, B und das Penthouse decken unterschiedliche Bedürfnisse ab und ermöglichen eine stabile, breit gestreute Vermietung.
Gesamtwohnfläche pro Haus: ca. 550–560 m² (variierend je nach Terrassen- und Dachflächen).
Die Gartengeschosswohnungen im Wohnquartier EICHERWALD verbinden modernes Wohnen mit privatem Außenraum.
Mit direktem Zugang zu den eigenen Gartenflächen entsteht ein harmonischer Übergang zwischen Innen und Außen – ideal für Familien, Mehrgenerationenhaushalte, barrierefreies Wohnen oder Menschen, die Wert auf Natur und Rückzug legen.
Die linke Gartengeschosswohnung (Typ A) ist ideal für Singles oder Paare, die modernes, effizientes Wohnen schätzen.
Der offene Wohn- und Essbereich mit bodentiefen Fenstern öffnet sich direkt zur Terrasse – ein fließender Raum, der Licht und Außenbereich miteinander verbindet.
Das ruhig gelegene Schlafzimmer bietet ausreichend Platz zur individuellen Gestaltung. Ergänzt wird der Grundriss durch ein hochwertig ausgestattetes Bad – optional barrierefrei – sowie eine praktische Abstellkammer für zusätzlichen Stauraum.
Ausgestattet mit Fußbodenheizung und nach KfW-40-QNG Standard gebaut, überzeugt die Wohnung mit niedrigen Betriebskosten und einem nachhaltigen Wohngefühl. Die direkte Gartenanbindung macht sie zu einem idealen Rückzugsort.
| Schlafen | 12,80 m² |
| Kind/Büro | 15,47 m² |
| Flur | 10,65 m² |
| Bad | 06,50 m² |
| Kochen/Wohnen | 37,48 m² |
| Terrasse (50%) | 07,56 m² |
| Wohnfläche gesamt | 90,46 m² |
|---|---|
| Abstell/HWR | 05,32 m² |
| Keller | 09,57 m² |
| Wohn- und Nutzfläche gesamt | 105,35 m² |
ab 527.500€
Die Erd- und Obergeschosswohnung Typ A bietet modernes, lichtdurchflutetes Wohnen mit einem sonnigen Balkon, ideal für Singles oder Paare.
Die Erd- und Obergeschosswohnung Typ A bietet modernes, effizientes Wohnen für Singles oder Paare.
Der offene Wohn- und Essbereich öffnet sich zu einem sonnigen Balkon, der den Innenraum erweitert und einen angenehmen Rückzugsort im Freien schafft. Große Fensterflächen sorgen für viel Tageslicht und ein freundliches Wohngefühl.
Das ruhig gelegene Schlafzimmer bietet genügend Platz zur individuellen Gestaltung. Ein modernes Badezimmer – auf Wunsch barrierefrei – sowie eine praktische Abstellkammer runden den Grundriss ab.
Mit Fußbodenheizung und dem energieeffizienten KfW-40-QNG Standard steht Typ A für nachhaltiges, zukunftssicheres Wohnen im Eicherwald-Quartier.
| Schlafen | 16,15 m² |
| Flur | 08,27 m² |
| Bad | 09,27 m² |
| Kochen/Wohnen | 35,72 m² |
| Terrasse (50%) | 07,13 m² |
| Wohnfläche gesamt | 76,54 m² |
|---|---|
| HWR | 06,50 m² |
| Keller | nach Absprache |
| Wohn- und Nutzfläche gesamt | 83,04m² |
auf Anfrage
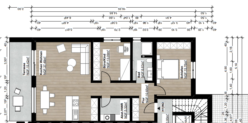
Die Wohnungen Typ B bietet mit drei Zimmern und einem weitläufigen Grundriss viel Raum für Familien, Home-Office-Konstellationen oder alle, die ein Plus an Wohnfläche schätzen. Der helle Wohn- und Essbereich öffnet sich zum Balkon und schafft einen angenehmen Außenraum über dem Quartier.
Die Wohnung Typ B bietet mit drei Zimmern und einem weitläufigen Grundriss viel Platz für Familien oder Menschen, die Raum für individuelle Lebensstile suchen. Der helle Wohn- und Essbereich öffnet sich zu einem sonnigen Balkon, der den Wohnraum nach außen erweitert und einen angenehmen Rückzugsort ins Freie schafft.
Das Hauptschlafzimmer ist großzügig geschnitten, während das zweite Zimmer flexibel als Kinder-, Arbeits- oder Gästezimmer genutzt werden kann. Ein modernes, hochwertig ausgestattetes Bad – auf Wunsch barrierefrei – sowie eine praktische Abstellkammer ergänzen die Wohnung.
Mit Fußbodenheizung und energieeffizient nach KfW-40-QNG gebaut, verbindet Typ B modernes Wohnen mit hoher Wohnqualität und nachhaltigem Komfort – ideal für alle, die Großzügigkeit und Flexibilität schätzen.
| Schlafen | 15,76 m² |
| Flur | 10,65 m² |
| Bad | 06,63 m² |
| Kind/Büro | 13,09 m² |
| Kochen/Wohnen | 37,48 m² |
| Terrasse (50%) | 07,31 m² |
| Wohnfläche gesamt | 90,92 m² |
|---|---|
| HWR | 05,32 m² |
| Keller | nach Absprache |
| Wohn- und Nutzfläche gesamt | 96,24 m² |
auf Anfrage
Die Obergeschosswohnung Typ B bietet mit drei Zimmern und einem weitläufigen Grundriss viel Raum für Familien, Home-Office-Konstellationen oder alle, die ein Plus an Wohnfläche schätzen. Der helle Wohn- und Essbereich öffnet sich zum Balkon und schafft einen angenehmen Außenraum über dem Quartier.
Die 3-Zimmer-Obergeschosswohnung Typ B bietet einen großzügigen Grundriss und viel Flexibilität für Familien, Paare mit Home-Office oder alle, die mehr Raum schätzen. Der helle Wohn- und Essbereich mit großen Fensterflächen öffnet sich zum sonnigen Balkon – ein angenehmer Außenbereich über dem Quartier.
Das Hauptschlafzimmer ist geräumig, das zusätzliche Zimmer vielseitig nutzbar als Kinder-, Arbeits- oder Gästezimmer. Ein modernes Bad, auf Wunsch barrierefrei, sowie eine praktische Abstellkammer runden das Raumangebot ab.
Mit Fußbodenheizung und energieeffizient nach KfW-40-QNG gebaut, bietet Typ B zeitgemäßen Wohnkomfort in ruhiger Lage.
| Schlafen | 11,45 m² |
| Kind I | 11,98 m² |
| Kind II | 11,94 m² |
| Flur OG | 03,92 m² |
| Flur DG | 11,83 m² |
| Bad | 05,62 m² |
| Gästebad | 06,40 m² |
| Ankleide | 05,71 m² |
| Kochen/Wohnen | 55,80 m² |
| Terrasse (50%) | 07,78 m² |
| Wohnfläche gesamt | 138,28 m² |
|---|---|
| HWR | 05,97 m² |
| Abstell | 01,88 m² |
| Keller | 13,47 m² |
| Wohn- und Nutzfläche gesamt | 149,89 m² |
ab 798.500€
Das Penthouse im Wohnquartier Eicherwald verbindet moderne Loftarchitektur mit maximaler Privatsphäre. Großzügige Räume, ein offener Grundriss und die sonnige Dachterrasse schaffen ein Wohnerlebnis, das Design, Licht und Exklusivität mühelos vereint.



Das Penthouse im Neubauprojekt Eicherwald bietet ein Wohngefühl auf besonders hohem Niveau. Großzügige Räume, durchdachtes Design und maximale Privatsphäre verbinden sich zu einer modernen Loftatmosphäre, die Komfort und Exklusivität mühelos vereint.
Der offene Wohn- und Essbereich mit seinen großen Fensterflächen schafft ein beeindruckendes Raumgefühl und viel Licht. Die angrenzende Dachterrasse erweitert den Wohnraum nach draußen – ein Ort für entspannte Momente, ob beim morgendlichen Kaffee oder abends mit Freunden.
Besonders exklusiv ist der private Zugang: Über den Fahrstuhl gelangen Sie direkt in Ihre Wohnung, geschützt durch einen eigenen Chip-Zugang. Ein separates Treppenhaus verstärkt die private Atmosphäre und unterstreicht den besonderen Charakter des Penthouse-Grundrisses.
Hochwertiges Parkett, moderne Bäder und eine offen gestaltete Küche prägen das Innenraumkonzept. Mit Fußbodenheizung und energieeffizienter Bauweise nach KfW-40-QNG bietet das Penthouse zeitgemäßen Wohnkomfort – elegant, nachhaltig und rundum großzügig.
| Schlafen | 11,45 m² |
| Kind I | 11,98 m² |
| Kind II | 11,94 m² |
| Flur OG | 03,92 m² |
| Flur DG | 11,83 m² |
| Bad | 05,62 m² |
| Gästebad | 06,40 m² |
| Ankleide | 05,71 m² |
| Kochen/Wohnen | 55,80 m² |
| Terrasse (50%) | 07,78 m² |
| Wohnfläche gesamt | 130,43 m² |
|---|---|
| HWR | 05,97 m² |
| Abstell | 01,88 m² |
| Keller | nach Absprache |
| Wohn- und Nutzfläche gesamt | 138,28 m² |
auf Anfrage
Auf Wunsch kann die Wohnung komplett möbliert übernommen werden – ausgestattet mit maßgefertigten Möbeln aus der Manufaktur GERBER. Hier verbindet sich zeitloses Design mit höchster handwerklicher Präzision: vom Boden bis in die Küchenschublade ist jedes Detail aufeinander abgestimmt.
Im Grundumfang enthalten sind stilvolle Türen, hochwertige Böden sowie moderne Armaturen. Zusätzlich können eine individuell geplante Küche und exklusive Badmöbel aus der hauseigenen Fertigung als Sonderausstattung erworben werden.
GERBER Architekturbüro mit hauseigener Schreinerei Wir designen, planen, bauen und fertigen Lebensräume.
Im Kaufpreis sind unter anderem die folgenden Highlights enthalten:
GERBER I EXKLUSIV – Paket
OPTIONALE AUSSTATTUNG
Weitere Eindrücke zur Ausstattungsqualität unserer Häuser erhalten Sie über die folgenden Links:
Investieren Sie in EICHERWALD Erbes-Büdesheim – zukunftssicher, energieeffizient und nachhaltig.
Die Bauweise nach KfW-40-QNG Standard bietet steuerliche Vorteile, attraktive Sonderabschreibungen und Zugang zu staatlichen Fördermöglichkeiten.
Die 25 Eigentumswohnungen im neuen Wohnquartier sind klar strukturiert geplant und ideal für Kapitalanleger sowie sicherheitsorientierte Privatpersonen. Optional erhältliche Einbauküchen und Badmöbel aus der hauseigenen GERBER-Schreinerei steigern die Mietattraktivität und schaffen langlebigen Mehrwert.
Sichern Sie sich eine wertstabile Immobilie im Rhein-Main-Gebiet – modern, nachhaltig und mit langfristigem Renditepotenzial.
Reduzieren Sie Ihre Energiekosten durch innovative Bauweise und hochwertige Dämmung.
Staatliche Zuschüsse und attraktive Konditionen machen Ihre Investition noch wertvoller.
Ein Beitrag zur Umwelt durch nachhaltige Materialien und ressourcenschonendes Bauen.
Wir haben uns Anfang 2018 entschieden ein Haus zu bauen und waren anschließend bei einigen sog. „Massivhausanbietern“ zur Beratung. Wir hatten ziemlich genaue Vorstellungen von unserem Traumhaus aber natürlich auch noch einige Probleme, die zu lösen waren – und ehrlich gesagt konnte uns niemand so richtig überzeugen dort unser Projekt vom eigenen Haus in Auftrag zu geben, niemand konnte uns so richtig „mitnehmen“.
Das änderte sich schlagartig bei der Firma Gerber – über eine private Empfehlung lernten wir den Geschäftsführer, Sven Gerber, kennen. Es gab sofort Ideen für unsere „Problemchen“ und wir merkten wie es vor allem um Details ging, die uns jetzt in unserem fertigen Haus jeden Tag begeistern. Dinge wie eine individuell geschreinerte Küche oder einen Einbauschrank unter der Treppe hören sich ganz normal an – aber wenn man die Bilder gesehen hat, braucht man keine Worte mehr dafür – einfach nur einzigartig!
Also, für alle die sich zurücklehnen wollen und mit totaler Entspannung ein Eigenheim entstehen sehen wollen – eine klare Empfehlung für die Firma Gerber Ingenieure.
An dieser Stelle nochmals ein großes Dankeschön an Sven und auch an alle Jungs aus seinem Team – es hat Spaß gemacht und wir freuen uns jeden Tag über unser „Traumhaus“!
Von der Idee zum Eigenheim
Wer schon mal gebaut hat, der weiß nur zu gut, wie lang und steinig der Weg von der Bau-Idee bis zum Einzug in das Eigenheim ist oder sein kann.
Auch wir standen zu Beginn vor den 1000 Fragen, die ein Bau so mit sich bringt. Man hat unzählige Ideen und Wünsche, wie das eigene Zuhause später aussehen soll. Dann die ersten Gespräche, auf die die große Ernüchterung folgt. Bei den meisten Anbietern auf dem Markt, muss man enorme Kompromisse eingehen oder man bekommt das Standardprogramm abgespult, ohne das auf die individuellen Bedürfnisse eingegangen wird – das wollten wir aber nicht. Wir suchten also jemanden, der unsere Vision – unseren Stil von Haus versteht und umsetzt.
Via Instagram sind wir dann auf Gerber Ingenieure aufmerksam geworden – direkt im ersten Gespräch haben wir gemerkt, dass wir verstanden werden – eine Sprache sprechen. Die Entscheidung war gefallen – Gerber oder nix!!
Das Konzept des ganzheitlichen Ansatzes bis hin zu Leistungen aus der hauseigenen Schreinerei hat uns, neben der fachlichen und positiven Art von Sven Gerber, absolut überzeugt. Anfangs skeptisch, was den “stressfreien” Bau anging, waren wir nach dem Einzug und den Erzählungen von anderen Baustellen mehr den je von unserer Entscheidung überzeugt.
Wir hätten uns aus beruflichen Gründen zeitlich niemals in das Thema Hausbau einarbeiten können und wären wahrscheinlich nie auf die Idee gekommen ein Haus zu bauen. Durch Horrorgeschichten im Bekanntenkreis wurden wir vom Hausbau abgeschreckt.
Durch Instagram, Freunde und Familie sind wir auf Sven und Gerber Ingenieure aufmerksam geworden. Das Konzept mit Hausgestaltung und Durchführung in einer Hand hat uns absolut begeistert.
Wir kamen durch Zufall an ein Grundstück welches aber sehr schwer zu bebauen war und haben einen kreativen Partner gebraucht der uns individuell auf dieses Grundstück unser Traumhaus baut. Ohne dass es uns viel Zeit und Nerven kostet.
Die Firma Gerber hat das geschafft! Der Hausbau verlief komplett ohne Stress, so dass wir uns in der Bauphase über die einzelnen Baufortschritte freuen konnten. Alles wurde genauso umgesetzt wie es auch geplant war und wir mussten uns bis zum Umzug um Nichts kümmern. Auch keine Küche im Möbelhaus aussuchen, da diese genau wie die Sitzfenster (wir haben 2 😉) bei einem Gerberhaus immer dabei ist. Danke an Sven und das komplette Team aus dem Planungsbüro und der Schreinerei!
Erbes-Büdesheim profitiert unmittelbar vom dynamischen Wachstum der Region Rheinhessen – verstärkt durch den entstehenden Eli-Lilly-Pharmastandort, der in den kommenden Jahren tausende neue Arbeitsplätze schafft. Dieser wirtschaftliche Impuls führt zu einer deutlich steigenden Nachfrage nach Wohnraum im erweiterten Einzugsgebiet zwischen Alzey und Mainz.
Starke Wirtschaftsregion:
Nähe zu Alzey, Mainz, Rhein-Main und dem neuen Eli-Lilly-Standort sorgt für hohe Arbeitsplatzdichte und stabile Nachfrage nach Mietwohnungen.
Optimale Anbindung:
Schnelle Anbindung an A61 & A63 sowie kurze Wege nach Mainz, Wiesbaden und Frankfurt. Perfekt für Pendler.
Naturnahe Wohnlage:
Ruhiger Ortsrand, umgeben von Weinbergen und Feldern – Wohnen im Grünen ohne auf Infrastruktur verzichten zu müssen
Lebensqualität im Alltag:
Kurze Wege zu Schulen, Einkaufsmöglichkeiten, Nahversorgung und Freizeitangeboten im Alzeyer Land.
Hohe Vermietbarkeit:
Gefragte Wohnungsgrößen (2–3 Zimmer), moderne Ausstattung und energieeffiziente Bauweise schaffen ein langfristig attraktives Mietumfeld.
Sicherer Immobilienstandort:
Nachhaltige Bevölkerungsentwicklung in Rheinhessen, wachsender Bedarf an Wohnraum und solide Wertbeständigkeit.
Ihnen gefällt unser Bauprojekt und Sie möchten gerne mehr Informationen? Dann wenden Sie sich gerne jederzeit an uns und wir werden uns umgehend mit Ihnen in Verbindung setzen.